
|
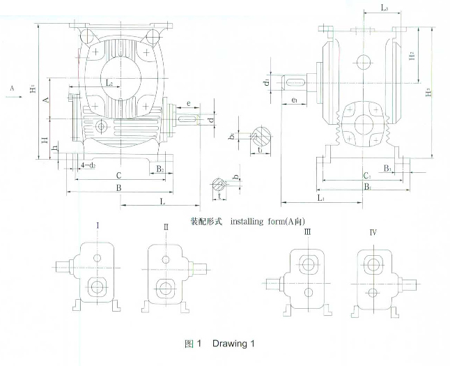
尺寸 |
A |
B |
B1 |
B2 |
B3 |
C |
C1 |
H |
H1 |
H2 |
H3 |
h |
L |
|
WHT04 |
42 |
145 |
125 |
35 |
25 |
120 |
105 |
71 |
190 |
77 |
173 |
12 |
118.5 |
|
WHT06 |
65 |
180 |
156 |
40 |
30 |
155 |
126 |
63 |
233 |
105 |
315 |
15 |
144 |
|
WHT08 |
80 |
240 |
206 |
55 |
34 |
205 |
172 |
90 |
278 |
110 |
277 |
20 |
175 |
|
WHT10 |
100 |
292 |
238 |
68.5 |
42 |
250 |
196 |
105 |
336 |
135 |
335 |
25 |
210 |
说明:*为原草案标准,由于工厂原产品按草案标准生产,现在处于由草案向JB318标准过渡阶段,即:草案和JB2318产品均在生产,为此如需部颁标准产品,在合同上注明JB2318。示例:JB2318WHTOB-9-V,否则,仍按原草案供货。
三、减速器的传动比及输入功率表
|
传 |
公
称 传 动 比 |
中心距→ |
80 |
100 |
120 |
125 |
150 |
160 |
180 |
200 |
210 |
250 |
280 |
300 |
320 |
360 |
400 |
420 |
450 |
500 |
|
1 |
8 |
1500 |
2.5 |
4.5 |
7.23 |
10.1 |
13.4 |
19.9 |
22.7 |
29.8 |
31.5 |
46.1 |
54.4 |
68.9 |
70.4 |
87.1 |
110 |
161 |
_ |
_ |
|
1000 |
2.1 |
3.9 |
5.28 |
8.0 |
9.77 |
16.1 |
17.7 |
24.7 |
27.9 |
41.5 |
50.5 |
57.4 |
64.4 |
80.5 |
103 |
117 |
128 |
163 |
||
|
750 |
1.9 |
3.5 |
4.22 |
6.6 |
7.76 |
13.4 |
14.4 |
20.8 |
23 |
35.6 |
44.3 |
46.2 |
57.9 |
73.8 |
94.6 |
97.7 |
119 |
154 |
||
|
500 |
1.5 |
2.9 |
3.06 |
5.0 |
5.56 |
10.3 |
10.03 |
16.1 |
17.1 |
27.8 |
35.1 |
37.5 |
45.3 |
59.6 |
77.7 |
86.8 |
101 |
138 |
||
|
2 |
10 |
1500 |
2.0 |
3.8 |
5.98 |
9.4 |
11.5 |
16.4 |
20.3 |
26.7 |
27.7 |
39.7 |
48.2 |
53.8 |
59.8 |
76.2 |
97.3 |
138 |
_ |
_ |
|
1000 |
1.7 |
3.3 |
4.29 |
7.4 |
8.14 |
13.2 |
15.4 |
22.4 |
23.5 |
34.1 |
41.6 |
43.6 |
53.8 |
68.8 |
88.6 |
98.2 |
111 |
146 |
||
|
750 |
1.5 |
2.9 |
3.41 |
6.1 |
6.47 |
11.1 |
12.68 |
19.1 |
20.1 |
29.3 |
36.3 |
38.3 |
47.6 |
61.2 |
79.1 |
80.5 |
98.5 |
131 |
||
|
500 |
1.3 |
2.4 |
2.46 |
4.7 |
4.97 |
8.5 |
9.87 |
14.7 |
15.7 |
23.1 |
28.8 |
30.8 |
37.7 |
49.2 |
64.8 |
65.6 |
82.5 |
111 |
||
|
3 |
12.5 |
1500 |
1.6 |
2.8 |
4.84 |
8.1 |
8.81 |
14.9 |
16.4 |
20.0 |
22 |
32.9 |
43.1 |
47.1 |
61.6 |
73.2 |
89.3 |
124 |
_ |
_ |
|
1000 |
1.4 |
2.4 |
3.57 |
6.3 |
6.49 |
11.9 |
12.2 |
16.2 |
18.2 |
27.6 |
37.5 |
39.5 |
53.5 |
65.8 |
80.5 |
88.5 |
105 |
127 |
||
|
750 |
1.2 |
2.1 |
2.87 |
5.2 |
5.36 |
10.0 |
11.1 |
13.5 |
15.5 |
23.4 |
32.7 |
35.7 |
46.5 |
58.8 |
71.8 |
75.5 |
95.3 |
116 |
||
|
500 |
1.0 |
1.7 |
2.06 |
3.9 |
4.26 |
7.6 |
8.6 |
10.4 |
11.4 |
18.2 |
25.6 |
28.6 |
36.1 |
47.0 |
57.4 |
58.4 |
78.2 |
96.8 |
||
|
4 |
16 |
1500 |
1.6 |
3.0 |
4.41 |
6.5 |
8.22 |
12.8 |
15.8 |
19.2 |
21.2 |
29.9 |
35.6 |
38.6 |
46.0 |
62.7 |
71.9 |
92.9 |
_ |
_ |
|
1000 |
1.3 |
2.7 |
3.27 |
5.1 |
6.25 |
10.3 |
12.2 |
15.8 |
17.8 |
26.3 |
32.1 |
35.1 |
41.0 |
52.0 |
66.5 |
75.8 |
83.4 |
106 |
||
|
750 |
1.2 |
2.3 |
2.63 |
4.3 |
5.03 |
8.6 |
10.3 |
13.4 |
14.4 |
22.7 |
27.9 |
30.9 |
36.5 |
47.1 |
60.8 |
64.8 |
76.7 |
99.6 |
||
|
500 |
1.0 |
1.9 |
1.92 |
3.3 |
3.62 |
6.6 |
8.25 |
10.3 |
11.1 |
17.7 |
22.3 |
25.3 |
28.7 |
37.4 |
49.0 |
50.1 |
63.3 |
84.2 |
||
|
5 |
20 |
1500 |
1.3 |
2.2 |
3.65 |
6.0 |
6.52 |
10.3 |
11.4 |
15.5 |
16.5 |
25.0 |
23.1 |
26.1 |
41.3 |
49.1 |
69.4 |
89.8 |
_ |
_ |
|
1000 |
1.1 |
1.9 |
2.70 |
4.8 |
5.08 |
8.1 |
8.53 |
12.5 |
13.5 |
21.3 |
29.1 |
32.1 |
37.2 |
44.2 |
61.9 |
64.4 |
64.9 |
81.2 |
||
|
750 |
1.0 |
1.6 |
2.14 |
3.9 |
4.24 |
6.7 |
7.06 |
10.5 |
11.5 |
18.1 |
25.3 |
28.3 |
31.3 |
38.6 |
55.5 |
57.5 |
58.0 |
73.2 |
||
|
500 |
0.8 |
1.3 |
1.59 |
3.0 |
3.5 |
5.2 |
5.79 |
8.1 |
9.1 |
14.1 |
19.9 |
22.9 |
24.5 |
30.4 |
44.2 |
47.5 |
46.2 |
59.7 |
||
|
6 |
25 |
1500 |
1.0 |
1.9 |
3.16 |
4.6 |
5.56 |
8.4 |
12.2 |
14.3 |
15.3 |
20.8 |
24.7 |
27.7 |
34.8 |
43.4 |
50.9 |
80.1 |
_ |
_ |
|
1000 |
0.8 |
1.7 |
2.37 |
3.6 |
4.11 |
6.5 |
9.5 |
11.5 |
12.5 |
16.8 |
20.4 |
23.4 |
29.5 |
38.3 |
45.6 |
55.9 |
631 |
71.4 |
||
|
750 |
0.7 |
1.4 |
1.88 |
2.9 |
3.26 |
5.4 |
5.9 |
9.6 |
10.6 |
14.1 |
17.2 |
19.2 |
25.1 |
32.8 |
39.9 |
43.4 |
56.1 |
63.6 |
||
|
500 |
0.6 |
1.2 |
1.37 |
2.2 |
2.34 |
4.2 |
4.9 |
7.4 |
8.4 |
10.9 |
13.5 |
16.5 |
19.5 |
25.8 |
31.4 |
33.4 |
44.7 |
50.5 |
||
|
7 |
31.5 |
1500 |
1.2 |
2.1 |
2.54 |
4.4 |
4.86 |
8.6 |
10.6 |
12.8 |
13.8 |
19.8 |
23.2 |
26.2 |
30.2 |
37.1 |
46.9 |
64.1 |
_ |
_ |
|
1000 |
1.0 |
1.8 |
1.91 |
3.5 |
3.91 |
6.9 |
8.3 |
10.5 |
11.5 |
17.4 |
21.6 |
24.6 |
26.6 |
33.9 |
43.3 |
45.5 |
54.5 |
68.5 |
||
|
750 |
0.9 |
1.6 |
1.55 |
2.9 |
3.31 |
5.8 |
7.21 |
8.9 |
9.8 |
15.1 |
18.3 |
21.3 |
23.9 |
30.7 |
39.5 |
41.5 |
50.0 |
64.5 |
||
|
500 |
0.7 |
1.4 |
1.13 |
2.3 |
2.86 |
4.5 |
5.05 |
7.0 |
7.9 |
11.8 |
14.6 |
17.6 |
18.9 |
24.5 |
32.0 |
34.8 |
41.1 |
54.6 |
||
|
8 |
40 |
1500 |
0.9 |
1.5 |
2.16 |
4.1 |
4.9 |
6.9 |
7.45 |
10.5 |
11.5 |
16.8 |
22.0 |
24 |
27.3 |
32.4 |
45.4 |
55.1 |
_ |
_ |
|
1000 |
0.8 |
1.3 |
1.62 |
3.2 |
3.9 |
5.5 |
5.83 |
8.4 |
9.4 |
14.2 |
19.4 |
21 |
24.0 |
28.9 |
40.8 |
42.8 |
42.2 |
52.8 |
||
|
750 |
0.7 |
1.2 |
1.32 |
2.7 |
3.1 |
4.6 |
5.94 |
7.1 |
8.1 |
12.0 |
16.7 |
18.7 |
20.7 |
25.4 |
26.2 |
30.6 |
37.8 |
47.8 |
||
|
500 |
0.6 |
1.0 |
0.98 |
2.1 |
2.6 |
3.6 |
4.79 |
5.5 |
6.5 |
9.5 |
13.2 |
14.5 |
16.3 |
20.3 |
24.0 |
29.9 |
30.3 |
39.0 |
||
|
9 |
50 |
1500 |
0.7 |
1.3 |
1.86 |
3.1 |
3.21 |
5.7 |
7.21 |
9.8 |
10.8 |
14.0 |
16.5 |
18.5 |
23.2 |
28.8 |
33.7 |
45 |
_ |
_ |
|
1000 |
0.6 |
1.2 |
1.37 |
2.5 |
2.7 |
4.5 |
5.8 |
7.8 |
8.9 |
11.4 |
13.8 |
15.8 |
19.5 |
25.3 |
30.0 |
32 |
41.7 |
47.0 |
||
|
750 |
0.5 |
1.0 |
1.12 |
2.0 |
2.4 |
3.7 |
4.1 |
6.7 |
7.7 |
9.5 |
11.7 |
14.5 |
16.8 |
21.8 |
26.3 |
27.2 |
37.4 |
41.8 |
||
|
500 |
0.4 |
0.8 |
0.85 |
1.6 |
1.82 |
2.9 |
3.5 |
5.2 |
6.2 |
7.5 |
9.1 |
10.9 |
13.1 |
17.2 |
21.2 |
22.3 |
29.8 |
33.3 |

江苏省泰兴减速机总厂
采购 泰兴减速机 请选择百强减速机有限公司(原 泰兴减速机总厂)
全国咨询电话: 400-710-9918 传真:0510-80212333/85516654/85508340
座机:0510-80212111/80212555/80210978/85519221/85518416/85511836
邮箱:1051532995@qq.com 地址:无锡市解放北路16号