本机应用范围及结构概况1、应用范围及优点: 本机广泛应用于各种起重、运输、矿山机械及其它各种机械中作减速之用。其联动方式,可用联轴器直接联动,也可用三角皮带挠性联动。 本机通用性和互换性强,维修简单,效率系数为0.94,具有起动阻力小,运动灵活等优点。 本机结构型式为两级三轴圆柱斜齿水平分割全封式。润滑油盛于减速机之内部,在主动轴和中间轴上设有挡油板,各轴支点均用滚动轴承,其轴向间隙,可用内部调整环调整之,本机上部有一检查盖,下部有油标指针和排废油用的油。
主要规格
本系列减速机按大小、速比、装配形式分如下几种:
1、按主动轴、被动轴中心距分八种型号:JZQ250、JZQ350、JZQ400、JZQ500、JZQ650 、JZQ750、JZQ850、JZQ1000。
2、按速比大小、每种型号又分以下九种速比。(表二)

3、按主动轴和被动轴的装配方法,又分九种装配形式。(图一)

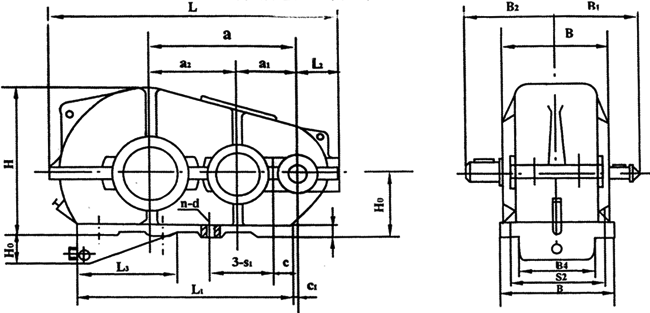
JZQ型圆柱齿轮减速机基本尺寸

|
型号
|
中心距
|
中心高
H0
|
最大外形尺寸
|
轴端尺寸
|
L1
|
L2
|
L3
|
B4
|
H1
|
g
|
安装尺寸
|
最大
质量
kg
|
||||||||||
|
a
|
a1
|
a2
|
L
|
B
|
H
|
高速轴
B1
|
低速轴
B2
|
C
|
C1
|
孔距
|
孔径
d
|
孔数
n
|
||||||||||
|
S1
|
S2
|
|||||||||||||||||||||
|
JZQ250
|
250
|
100
|
150
|
160-00.5
|
540
|
230
|
313
|
200
|
218
|
345
|
101
|
-
|
-
|
-
|
20
|
60
|
28
|
235
|
190
|
17
|
4
|
100
|
|
JZQ350
|
350
|
150
|
200
|
200-00.5
|
730
|
290
|
440
|
260
|
248
|
470
|
132
|
-
|
-
|
-
|
25
|
100
|
40
|
310
|
250
|
17
|
4
|
200
|
|
JZQ400
|
400
|
150
|
250
|
250-00.5
|
826
|
310
|
490
|
270
|
303
|
490
|
133
|
-
|
-
|
-
|
25
|
110
|
80
|
370
|
370
|
17
|
4
|
250
|
|
JZQ500
|
500
|
200
|
300
|
300-00.5
|
986
|
350
|
587
|
330
|
323
|
645
|
148
|
-
|
-
|
-
|
25
|
130
|
80
|
240
|
310
|
17
|
6
|
390
|
|
JZQ650
|
650
|
250
|
400
|
320-01.5
|
1278
|
470
|
695
|
430
|
428
|
830
|
183
|
495
|
324
|
100
|
30
|
160
|
85
|
215
|
410
|
25
|
8
|
880
|
|
JZQ750
|
750
|
300
|
450
|
320-01.5
|
1448
|
510
|
740
|
450
|
445
|
1020
|
206
|
620
|
364
|
135
|
35
|
155
|
55
|
275
|
450
|
25
|
8
|
1100
|
|
JZQ850
|
850
|
350
|
500
|
400-01.5
|
1632
|
580
|
875
|
510
|
523
|
1100
|
236
|
610
|
418
|
105
|
38
|
155
|
75
|
300
|
520
|
32
|
8
|
1500
|
|
JZQ1000
|
1000
|
400
|
600
|
400-01.5
|
1896
|
660
|
965
|
550
|
603
|
1350
|
257
|
870
|
478
|
200
|
40
|
200
|
100
|
350
|
590
|
32
|
8
|
2230
|

江苏省泰兴减速机总厂
采购 泰兴减速机 请选择百强减速机有限公司(原 泰兴减速机总厂)
全国咨询电话: 400-710-9918 传真:0510-80212333/85516654/85508340
座机:0510-80212111/80212555/80210978/85519221/85518416/85511836
邮箱:1051532995@qq.com 地址:无锡市解放北路16号